Villa singola in vendita

Valgioie, Borgata Bussone - Borgata Bussone
€ 339.000
10 locali 10 locali
290 Mq 290 Mq
2 bagni 2 bagni

Villa singola in vendita

Valgioie, Borgata Bussone - Borgata Bussone

Descrizione annuncio

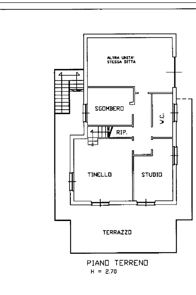
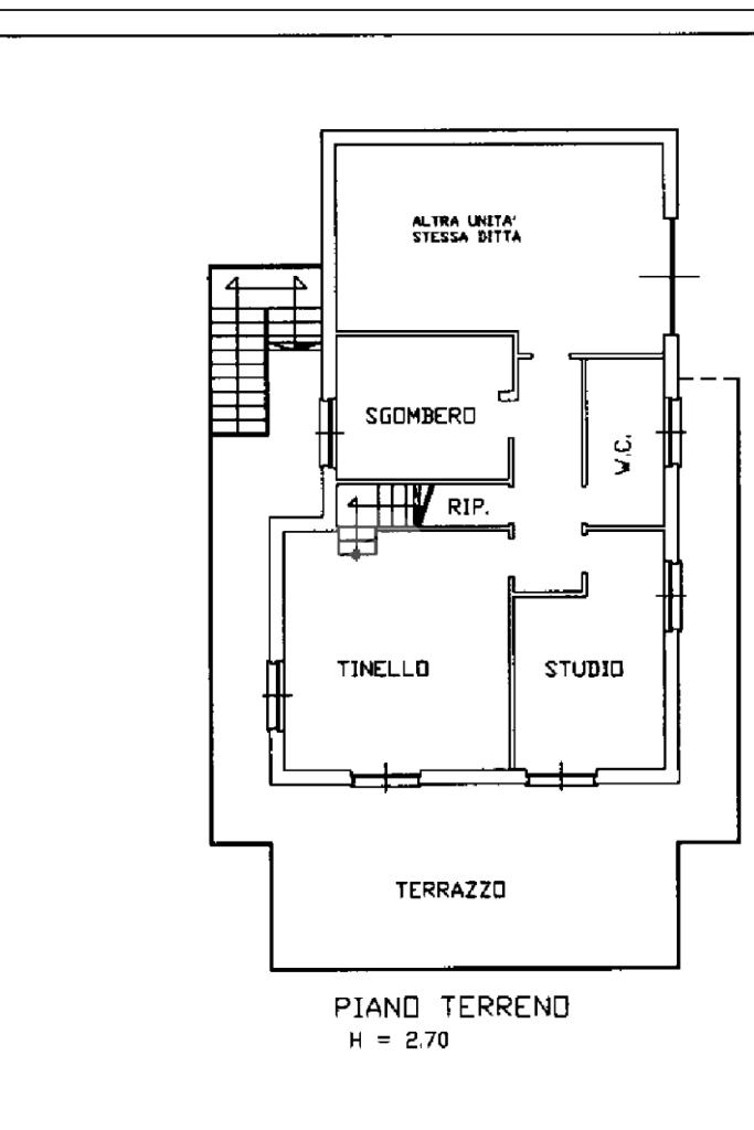
Situata nella suggestiva borgata Bussone, a pochi minuti di auto dal centro di Giaveno, villa indipendente ristrutturata nel 2004 ed è perfettamente adattabile anche come soluzione bifamiliare, rendendola ideale per famiglie numerose o per chi desidera ospitare parenti. L'appartamento principale si trova al primo piano e si apre su un ampio soggiorno luminoso con cucina a vista, caratterizzato da un grazioso camino a legna che aggiunge un tocco di calore all'ambiente. Dalla zona giorno, si accede al primo terrazzo, davvero spazioso e con una splendida esposizione a Sud che garantisce una vista panoramica mozzafiato. Questo piano ospita anche due camere da letto matrimoniali, una camera singola e un bagno moderno dotato di una comoda doccia angolare. Un elemento distintivo è la scala interna che conduce al piano mansardato, attualmente grezzo e con potenzialità infinita per creare ulteriori locali a seconda delle esigenze. Al piano terra, oltre al garage di 30 mq, troviamo un secondo appartamento completo di una generosa zona giorno con cucina a vista, anch'essa con accesso sul secondo terrazzo, che presenta tende solari estive e una veranda invernale, perfetta per godere degli spazi esterni in ogni stagione. Anche questo piano include una camera matrimoniale, una camera singola e un bagno con vasca. Ogni locale ha l’uscita sui balconi collegati al terrazzo, garantendo luce naturale e un facile accesso agli spazi esterni. La villa è circondata da un ampio giardino privato di circa 700 mq, fornendo un'ottima area verde per momenti di relax e attività all'aperto. Gli infissi in legno con doppio vetro sono dotati di zanzariere, mentre il sistema di sicurezza integra un antifurto volumetrico e perimetrale. Il riscaldamento è alimentato a GPL, con una caldaia a condensazione, assicurando comfort e efficienza energetica. Questa villa rappresenta una proposta imperdibile per chi desidera un'abitazione spaziosa, con gli spazi necessari per soddisfare diverse esigenze familiari e con la possibilità di personalizzare ulteriormente gli ambienti.

Le immagini e la descrizione si intendono di massima e non costituiscono elemento contrattuale.

Mostra tutto

Nelle vicinanze

Trasporto pubblico Trasporto pubblico
Trasporto pubblico
2,0 Km
Giaveno (v.le Regina Elena)
Giaveno (v.le Regina Elena)
3,0 Km
Scuole Scuole
Istituto Giacinto Pacchiotti
2,3 Km
Istituto Istruzione Superiore Blaise Pascal
2,4 Km
Scuole
2,7 Km
Istituto Scolastico Internazionale "Maria Ausiliatrice"
2,9 Km
Scuola Primaria e dell'Infanzia "Crolle"
2,9 Km
Farmacia Farmacia
Farmacia
1,9 Km
Farmacia Appendini
2,8 Km
Farmacia S. Antero
2,9 Km
Farmacia Dr. Reviglio
2,9 Km
Ospedali Ospedali
Ospedale Civile di Giaveno
2,9 Km
Supermercati Supermercati
Carrefour Express
2,9 Km
Negozi Negozi
Valmarket
1,3 Km
Bar Bar
Bar
1,0 Km
Bar Il Ritrovo
1,3 Km
Torrefazione Del Palio
2,8 Km
Caffè Del Commercio
2,8 Km
Gran Caffè Roma
2,8 Km
Ristoranti Ristoranti
Locanda del pellegrino
1,2 Km
Ristoranti
2,0 Km
Chalet del Lago
2,3 Km
Il 52
2,5 Km
Antica Cappella
2,5 Km
Mostra tutto

Caratteristiche

Rif.:
61143068
Piano:
4 di 4 (Piano su più livelli)
Box:
1
Posti auto:
3
Balconi:
2
Terrazzi:
2
Mostra tutto
Prezzo Prezzo
€ 339.000
Rata mutuo Rata mutuo
€ 1.597 / mese
Spese annue Spese annue
€ 0
Proponi il tuo prezzoProponi il tuo prezzo
Immobile valutato con T·Valuta

Classe Energetica

Questo immobile è esente da classe energetica
Anno di costruzione:
1981
Riscaldamento:
Autonomo
Tipo impianto:
A radiatori
Tipo alimentazione:
GPL

Ti interessa visionare l'immobile?

Fissa un appuntamento  Fissa un appuntamento

Richiedi informazioni

Clicca su Leggi per aprire l'informativa
* Questi campi sono obbligatori

Calcola il tuo mutuo

Semplice e senza impegno
Anticipo

( % )
Mutuo

( % )

pochi semplici passi

inserisci i tuoi dati
Questionario completato
Grazie per aver richiesto un appuntamento senza impegno con un nostro Consulente del Credito e Assicurativo.

Hai inserito correttamente tutti i dati necessari e a breve riceverai una e-mail con un link da convalidare per inviare i tuoi dati.
Affiliato
Studio Tre Srl
Viale Regina Elena , 42 10094 Giaveno (TO)

Il nostro staff


  • Andrea Crisafi
    Affiliato

  • Massimo Nizzia
    Affiliato

  • Sabrina Giordano
    Coordinatrice

  • Pierluigi Cusano
    Collaboratore

  • Ivan Drago
    Collaboratore

  • Alessio Nizzia
    Collaboratore

  • Simone Savese
    Collaboratore
Viale Regina Elena , 42 10094 Giaveno (TO)
Zona: Giaveno-Coazze-Valgioie
Mostra su mappa
Orari: Dal Lunedì al Venerdì: 9.00/12.30 - 15.00/20.00. Il Sabato: 9.00/12.30 - 15.00/19.00 Orario estivo Agosto: Dal Lunedì al Venerdì: 9.00/12.00 - 15.00/20.00. Il Sabato: 9.00/12.00 - 15.00/19.00
Affiliato
Studio Tre Srl
Viale Regina Elena , 42 10094 Giaveno (TO)

2026 Tecnocasa Franchising S.p.A. - P. IVA 08365160152 - Via Monte Bianco 60/A 20089 Rozzano (MI). Ogni agenzia ha un proprio titolare ed è autonoma. Privacy policy | Policy utilizzo | Cookie policy