Porzione di bifamiliare in vendita

Giaveno, Via Rosta - Sala
€ 329.000
5 locali 5 locali
200 Mq 200 Mq
4 bagni 4 bagni

Porzione di bifamiliare in vendita

Giaveno, Via Rosta - Sala

Descrizione annuncio

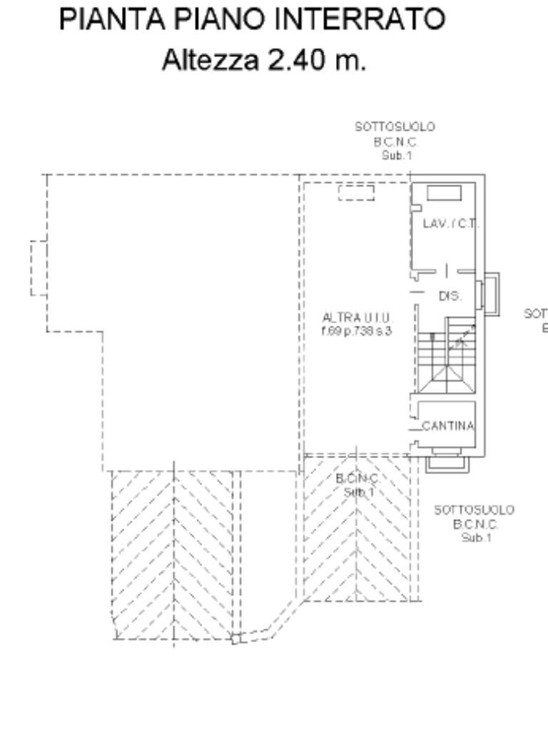
Situata nella rinomata zona della Sala, villa libera su tre lati costruita nel 2013, offre un'elegante combinazione di comfort moderno e materiali di pregio. L'immobile si sviluppa su tre livelli, oltre a un piano interrato, ed è ideale per chi cerca spazio e qualità. L'ingresso conduce a un ampio soggiorno, dove un camino a legna ventilato aggiunge calore e atmosfera. La cucina abitabile, ben arredata, si apre su una graziosa veranda, perfetta per cene all'aperto nelle mezze stagioni. Completano questo livello un bagno attrezzato con doccia. Accessibile tramite una elegante scala interna in pietra di Luserna rossa, il primo piano ospita una spaziosa camera matrimoniale, facilmente divisibile in due camere singole. Qui troviamo anche un bagno ad uso esclusivo, completo di vasca idromassaggio per momenti di relax. Nel piano mansardato si trova un ampio locale che può fungere da seconda camera, dotata di un bagno privato con doccia. Il piano interrato è caratterizzato da un box auto di ben 40 mq, una cantina e una lavanderia attrezzata, ulteriore valore aggiunto per la praticità quotidiana. La villa è circondata da un cortile privato di 70 mq e da un giardino che si estende sui due lati rimanenti, offrendo spazi verdi per il relax e il divertimento all’aperto. Gli infissi in triplo vetro in alluminio/legno, il riscaldamento a pavimento e i pannelli solari con accumulo dell'acqua calda garantiscono un elevato rendimento energetico, assicurando un ambiente confortevole e sostenibile.

Le immagini e la descrizione si intendono di massima e non costituiscono elemento contrattuale.

Mostra tutto

Nelle vicinanze

Trasporto pubblico Trasporto pubblico
Giaveno (v. Coazze-Deposito GTT)
Giaveno (v. Coazze-Deposito GTT)
1,4 Km
Giaveno (v.le Regina Elena)
Giaveno (v.le Regina Elena)
1,5 Km
Scuole Scuole
Istituto Giacinto Pacchiotti
950 m
Istituto Istruzione Superiore Blaise Pascal
1,0 Km
Istituto Scolastico Internazionale "Maria Ausiliatrice"
1,3 Km
Scuola Primaria e dell'Infanzia "Crolle"
1,3 Km
Scuole
1,4 Km
Farmacia Farmacia
Farmacia
690 m
Farmacia Appendini
1,3 Km
Farmacia S. Antero
1,4 Km
Farmacia Dr. Reviglio
1,5 Km
Ospedali Ospedali
Ospedale Civile di Giaveno
1,5 Km
Supermercati Supermercati
Carrefour Express
1,5 Km
crai
1,6 Km
Carrefour Market
2,0 Km
Coop Superstore Giaveno
2,3 Km
Negozi Negozi
Bramante
1,5 Km
Valmarket
2,6 Km
Bar Bar
Torrefazione Del Palio
1,3 Km
Bar
1,3 Km
Gran Caffè Roma
1,4 Km
Caffè Del Commercio
1,4 Km
Bar Il Ritrovo
2,6 Km
Ristoranti Ristoranti
Parlapà
1,2 Km
L'Ostu di Minulin
1,4 Km
Locanda dell'amicizia
2,7 Km
Ristoranti
2,7 Km
Locanda del pellegrino
2,8 Km
Mostra tutto

Caratteristiche

Rif.:
61044835
Piano:
2 di 3 (Piano su più livelli)
Box:
2
Posti auto:
4
Balconi:
1
Terrazzi:
1
Mostra tutto
Prezzo Prezzo
€ 329.000
Rata mutuo Rata mutuo
€ 1.553 / mese
Spese annue Spese annue
€ 0
Proponi il tuo prezzoProponi il tuo prezzo

Classe Energetica

D
D
D
D
D
D
D
D
D
EP globale non rinnovabile:
195.85 kW h/m² anno
EP globale rinnovabile:
132.51 kW h/m² anno
EP invernale del fabbricato:
EP estiva del fabbricato:
Anno di costruzione:
2013
Riscaldamento:
Autonomo
Tipo impianto:
A pavimento
Tipo alimentazione:
Metano

Ti interessa visionare l'immobile?

Fissa un appuntamento  Fissa un appuntamento

Richiedi informazioni

Clicca su Leggi per aprire l'informativa
* Questi campi sono obbligatori

Calcola il tuo mutuo

Semplice e senza impegno
Anticipo

( % )
Mutuo

( % )

pochi semplici passi

inserisci i tuoi dati
Questionario completato
Grazie per aver richiesto un appuntamento senza impegno con un nostro Consulente del Credito e Assicurativo.

Hai inserito correttamente tutti i dati necessari e a breve riceverai una e-mail con un link da convalidare per inviare i tuoi dati.
Affiliato
Studio Tre Srl
Viale Regina Elena , 42 10094 Giaveno (TO)

Il nostro staff


  • Andrea Crisafi
    Affiliato

  • Massimo Nizzia
    Affiliato

  • Sabrina Giordano
    Coordinatrice

  • Pierluigi Cusano
    Collaboratore

  • Ivan Drago
    Collaboratore

  • Alessio Nizzia
    Collaboratore

  • Simone Savese
    Collaboratore
Viale Regina Elena , 42 10094 Giaveno (TO)
Zona: Giaveno-Coazze-Valgioie
Mostra su mappa
Orari: Dal Lunedì al Venerdì: 9.00/12.30 - 15.00/20.00. Il Sabato: 9.00/12.30 - 15.00/19.00 Orario estivo Agosto: Dal Lunedì al Venerdì: 9.00/12.00 - 15.00/20.00. Il Sabato: 9.00/12.00 - 15.00/19.00
Affiliato
Studio Tre Srl
Viale Regina Elena , 42 10094 Giaveno (TO)

2025 Tecnocasa Franchising S.p.A. - P. IVA 08365160152 - Via Monte Bianco 60/A 20089 Rozzano (MI). Ogni agenzia ha un proprio titolare ed è autonoma. Privacy policy | Policy utilizzo | Cookie policy